MLS®# SK026149

1801 MCARA STREET

$1,199,999.00 CAD
Regina
MLS®# SK026149
Virtual Tour


Location


Key Details

$1,199,999.00
Office
4,002 SQ.FT
1982
Regina

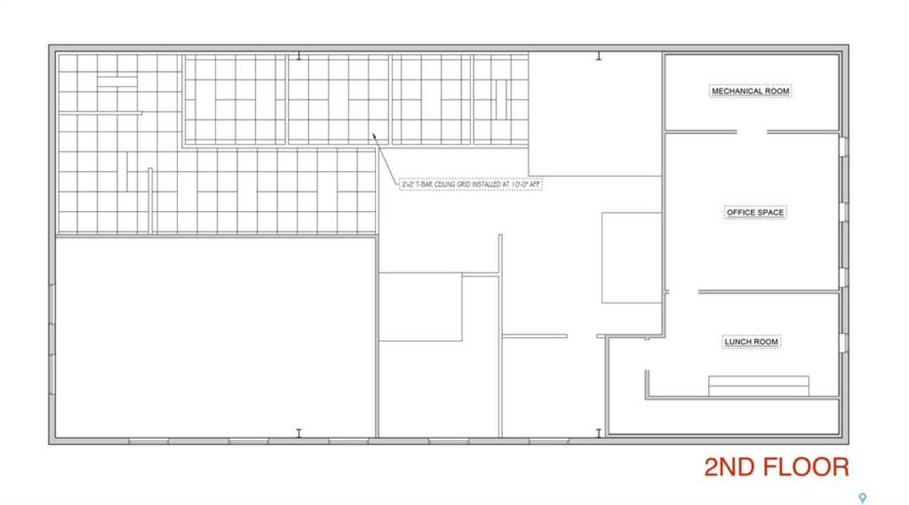
Description

Rare and exceptional opportunity to acquire a turnkey commercial property in the highly desirable Industrial Tuxedo area of Regina. Situated on a prominent corner lot of McAra street between Dewdney and Victoria Avenue, this approximately 4,000 sq. ft. building offers a unique blend of industrial durability and modern finish. Originally a light industrial warehouse, the property underwent an extensive renovation in 2018, transforming it into a high-quality facility currently configured as a veterinary clinic. The space is immaculately maintained and features a versatile layout that transitions seamlessly to professional offices, a medical clinic, or a specialized retail showroom. The ground floor provides ample operational space in forms of office and exam rooms, while the bonus second floor adds significant value, perfect for a private staff lounge, executive offices, a boardroom, or a dedicated breakout area. With its modernized infrastructure and flexible zoning potential, this property is a rare find ready for immediate occupancy or easy conversion. Due to nature of business, the owner requests all showings to be in evenings after 7:15 PM or weekends.

Listing courtesy of Re/max Crown Real Estate


More Info

City: Regina
Square Footage: 4002
Year Built: 1982
Type: Office
Heating: Air Conditioning, Floor Model Furnace

Land Size: 0.14
Parking Facility: Yes
Total Acres: 0.1400
Listed By: Re/max Crown Real Estate