MLS®# SK028184

1300 8TH AVENUE

$16.00 CAD
Regina
MLS®# SK028184
Virtual Tour


Location


Key Details

$16.00
Warehouse
3,300 SQ.FT
1946
Regina

Description

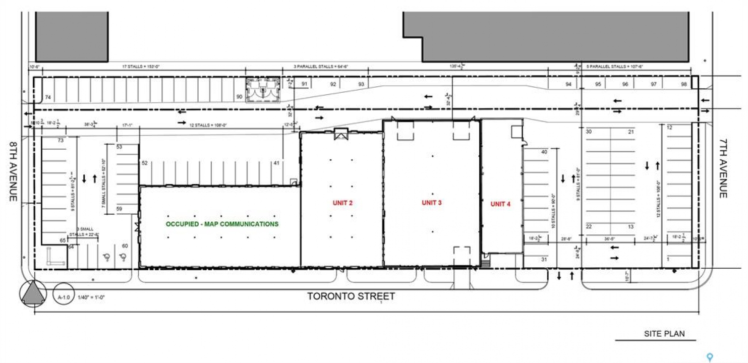
3,300 sqft available for rent immediately. Space is wide open showroom space with a single bathroom and backroom. Situated next to the historic and character filled formerly known as Signal Industries site. This space can be combined with 2 adjacent warehouses to give you a total of 17,000 sqft and up to 38 parking stalls total. Ideal space for anyone needing retail or creative studio.

Listing courtesy of Re/max Crown Real Estate


More Info

City: Regina
Square Footage: 3300
Year Built: 1946

Type: Warehouse
Heating: Other
Listed By: Re/max Crown Real Estate