MLS®# SK028187

1300 8TH AVENUE

$16.00 CAD
Regina
MLS®# SK028187
Virtual Tour


Location


Key Details

$16.00
Warehouse
17,620 SQ.FT
1946
Regina

Description

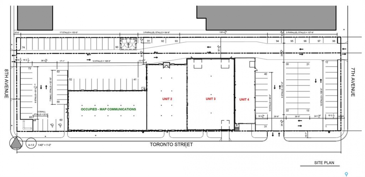
This historic and character-filled building (formerly Signal Industries) offers flexible spaces for lease ranging from 3,300 sqft up to 17,620 sqft. This particular space features an atrium-like feel with abundant natural light and high ceilings. There is also a large warehouse portion as well as office giving you a wide range of use. Its unique and rustic character-rich environment makes this suitable for a showroom, warehouse, storage, office, or creative studio. There are numerous overhead door entrances and loading docks as well making the space very versatile. Up to 38 stalls available(negotiable).

Listing courtesy of Re/max Crown Real Estate


More Info

City: Regina
Square Footage: 17620
Year Built: 1946

Type: Warehouse
Heating: Other
Listed By: Re/max Crown Real Estate