MLS®# SK028246

217 Aspen Ridge STREET

$543,999.00 CAD
Saskatoon
MLS®# SK028246


Location


Key Details

$543,999.00
3 Baths
Detached
2 Storey
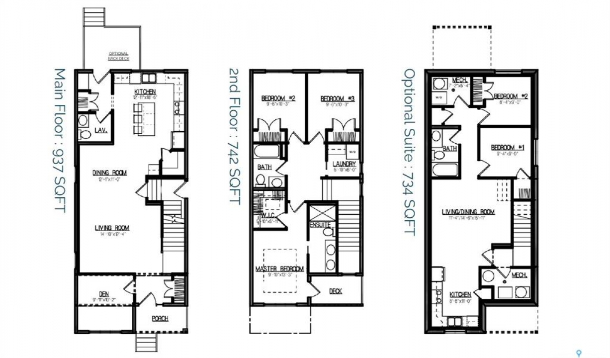
1,679 SQ.FT
2026
Saskatoon

Description

Welcome to Nouvelle II Belle Maison's newest single-family home development, ideally located in Saskatoon's sought-after Aspen Ridge community. This beautifully designed VISTA I model offers 1,679 sq. ft. of modern living space, combining contemporary finishes with a highly functional open-concept layout. The main floor features a versatile den, a convenient 2-piece bath, and a bright open-concept kitchen, dining, and living area, perfect for everyday living and entertaining. Upstairs, the primary suite provides a private retreat with a walk-in closet and a spa-inspired 4-piece ensuite. Two additional spacious bedrooms, a 4-piece main bath, and second-floor laundry complete the upper level. Designed with future flexibility in mind, this home offers the option to develop a legal basement suite, ideal for rental income or accommodating extended family. Added value includes front landscaping and a double garage pad, with custom upgrade options available upon request. Enjoy the convenience of being just minutes from schools, grocery stores, restaurants, fitness facilities, parks, scenic walking trails, and public transit. Where contemporary design meets everyday convenience, this is truly a place you'll love to call home. Multiple models and lots available—discover why Aspen Ridge is one of Saskatoon's most desirable neighborhoods.

Listing courtesy of L&t Realty Ltd.


More Info

City: Saskatoon
Square Footage: 1679
Year Built: 2026
Style: 2 Storey
Type: House
Roof: Asphalt Shingles
Outdoor: Lawn Front
Exterior: Siding
Furnace: Furnace Owned
Heating: Forced Air, Natural Gas

Features Interior: Air Exchanger,air Filter,heat Recovery Unit,sump Pump
Appliances: Dishwasher Built In,dryer,fridge,microwave Hood Fan,stove,washer
Land Size: 3437.56
Total Acres: 0.0789
Water Heater: Included
Water Softener: Not Included
Listed By: L&t Realty Ltd.