MLS®# SK033648

50 Manitoba STREET

$425,000.00 CAD
Moose Jaw
MLS®# SK033648


Location


Key Details

$425,000.00
Warehouse
8,845 SQ.FT
1994
Moose Jaw

Description

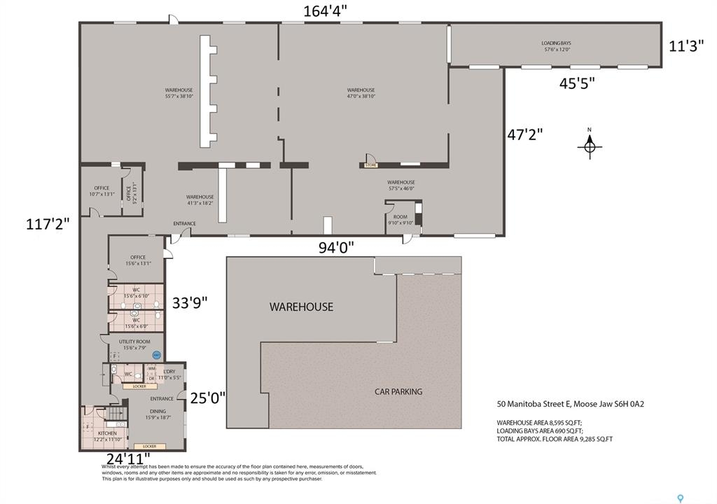
Welcome to an exceptional opportunity in downtown Moose Jaw! This expansive commercial warehouse boasts nearly 9,000 sq ft, providing a versatile space for your business needs. Conveniently located with easy access to the #1 highway, visibility is maximized for your enterprise. Featuring two offices, three bathrooms, a locker room, and a well-equipped kitchen space, this warehouse is designed to meet your operational requirements seamlessly. The practical layout includes three 9' overhead doors, perfectly suited for hauling trucks or semis, along with an additional 10' overhead door at the front of the building. Ample parking right in front ensures convenience for both staff and clients. Don't miss out on this prime location that combines functionality, accessibility, and prominence for your business success! ***Some photos were taken during former tenant occupancy. Property is now vacant.***

Listing courtesy of Global Direct Realty Inc.


More Info

City: Moose Jaw
Square Footage: 8845
Year Built: 1994
Type: Warehouse
Amenities: Onsite Parking, Wheelchair Access

Heating: Floor Model Furnace, Overhead Unit Heater
Land Size: 0.47
Parking Facility: Yes
Total Acres: 0.4700
Listed By: Global Direct Realty Inc.